
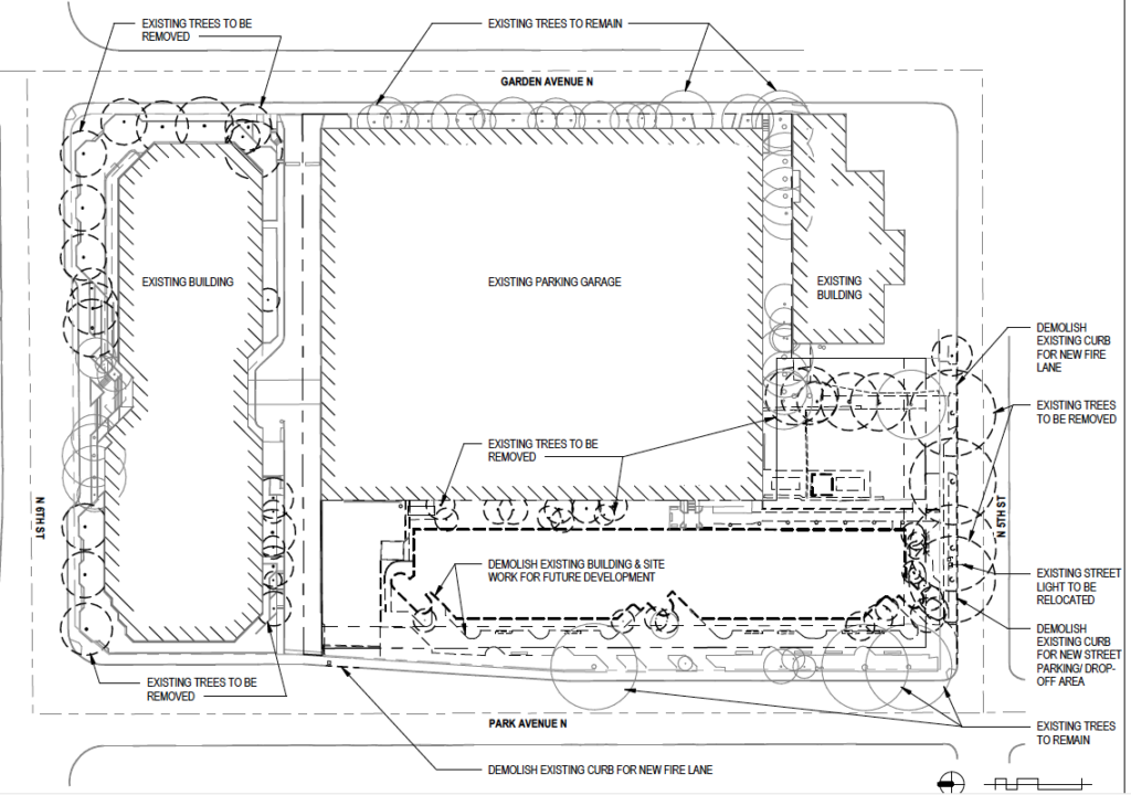
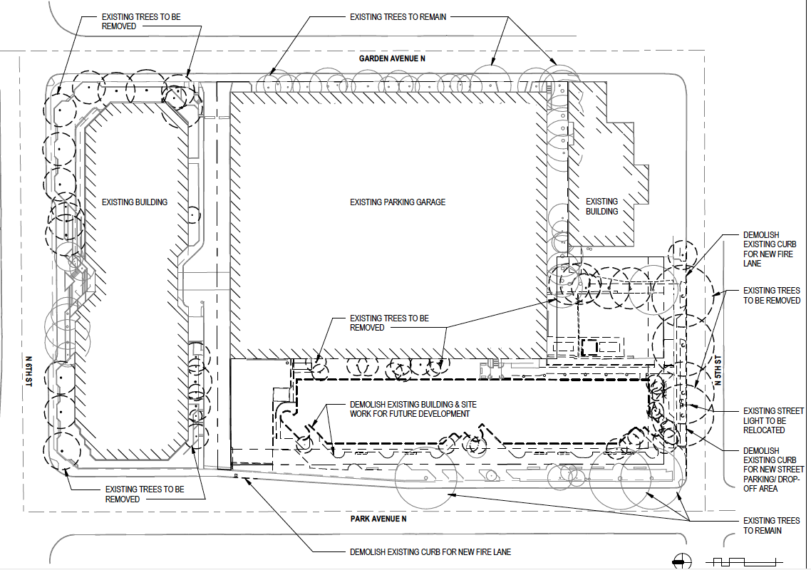
The City of Renton has recently done a million-dollar interior remodel of the small blue building at the southwest corner of the airport, to serve as an airport management office.

The airport management office had previously been located in the one-story building at the bottom of the control tower
Author’s note: I’ve recently written two blog entries recommending that the City of Renton investigate the way it bids and manages Public Works contracts due to recent severe overruns. This is a story about a third public works project that experienced a 50% overrun in the same timeframe (i.e. three over-budget projects all required significant additional funding within a two week period. ) While one overrun might be an unfortunate anomaly, twice indicates a trend, and three times feels like it could be a new normal.
On February 9 the Renton City Council was asked to approve final expenditures for an office remodel project at Renton airport that exceeded the budget by over 50%. The project provided refurbished office space for an increase in the number of staff managing the Renton airport.
According to city documents, “the main contributor for the escalated costs was HAZMAT remediation throughout and repair that was unforeseen prior to demolishing the interior walls and ceiling.”
While safely dealing with hazardous materials like asbestos and lead are important, some of these materials could have been expected in a 1950’s era commercial building. And it seems like some preliminary investigation could have revealed their presence in advance. In future budgeting and bidding processes, it would make sense to explore for these materials and budget in advance for these contingencies.
With regard to the unforeseen repairs, contractors will tell you repairs are inevitable when remodeling an older building. Most Public Works contracts carry a 10% contingency to cover for unexpected repairs or other work, and that is typically sufficient. It’s hard to imagine that reframing or redecking a portion of a small one-story building should exceed the 10% contingency for this project.
The original contract amount was $679,000. The final amount was $1,016,647. This amounts to a 50% overrun.
When overruns climb this high, it can become impossible to determine whether the city truly got the best deal during the bidding process. We’ll never know if the second or third place bidder might have been less expensive overall… there is no way to know.
The previous two blogs discussing recent Public Works cost overruns where for the Williams/Wells which needed $1,000,000 additional funding on February 9 and went over budget by 43%, and Rainier Avenue Project with required $370,000 additional funding on January 27th and was over budget by 29%.
Overrunning the budget on projects can happen even with solid planning. But it seems like there is room for improvement in estimating Public Works projects, and the City Council should consider an after-action review to find these opportunities.























































































Recent Comments